BT RS-50 Straddle Truck Parts Manual 301085-000
$30.00
- Type Of Manual: Parts Manual
- Manual ID: 301085-000
- : Parts Manual PDF
- Number of Pages: 182
- Size: 4.8MB
- Format: PDF
Category: BT Parts Manual PDF
-
Model List:
- RS-50 Straddle Truck
- 1. Front Cover
- 2. Warranty
- 3. Parts Ordering Instructions
- 4. General Information
- 5. Figure 1 Decal and Part Assembly
- 6. Figure 2 Parts List and Service Reference Index
- 7. Figure 3 Shielding Assembly
- 8. Figure 4 Emergency Disconnect Assembly
- 9. Figure 5 Auxiliary Control Assembly
- 10. Figure 6 Hand Lift and Speed Assembly
- 11. Figure 7 Master Control Switch Assembly
- 12. Figure 8 Brake Linkage Assembly
- 13. Figure 9 Steering Control Assembly
- 14. Figure 10 Auxiliary Pump Assembly
- 15. Figure 11 Auxiliary Motor Assembly
- 16. Figure 12 Transmission and Steering Installation Assembly
- 17. Figure 13 Drive Motor Brake Assembly
- 18. Figure 14 Drive Motor Assembly
- 19. Figure 15 Transmission Assembly Part 1
- 20. Figure 15 Transmission Assembly Part 2
- 21. Figure 16 Idler Wheel Installation Assembly
- 22. Figure 17 Idler Wheel Assembly
- 23. Figure 18 Electrical Schematic
- 24. Figure 19 Electrical Schematic Symbols
- 25. Figure 20 Relay Wiring Harness Assembly
- 26. Figure 21 Switch Relay Assembly
- 27. Figure 22 Wiring Harness Assembly
- 28. Figure 23 Wiring Assembly for Cold Storage
- 29. Figure 24 Sideshifter 2 Stage Mast Cable Assembly
- 30. Figure 25 Sideshifter 3 Stage Mast Cable Assembly
- 31. Figure 26 Tilt with Sideshifter Cable Assembly
- 32. Figure 27 Power Component Wiring
- 33. Figure 28 SCR and Contactor Panel Assembly
- 34. Figure 29 SCR Control
- 35. Figure 30 Transformer Assembly
- 36. Figure 31 Rectifier Heat Sink Assembly
- 37. Figure 32 GE Contactor Assembly
- 38. Figure 33 Power Steering Contactor Assembly
- 39. Figure 34 GE Contactor Assembly
- 40. Figure 35 Contactor Assembly
- 41. Figure 36 Warning Light Assembly
- 42. Figure 37 Hydraulic Schematic
- 43. Figure 38 Hydraulic Schematic Symbols
- 44. Figure 39 Auxiliary Pump and Reservoir Assembly
- 45. Figure 40 Brake Cylinder Assembly Drive Motor
- 46. Figure 41 Master Cylinder Assembly
- 47. Figure 42 Cylinder Assembly Caster Wheel
- 48. Figure 43 Auxiliary Control Valve and Brake Hose Assembly
- 49. Figure 44 Auxiliary Control Valve Assembly
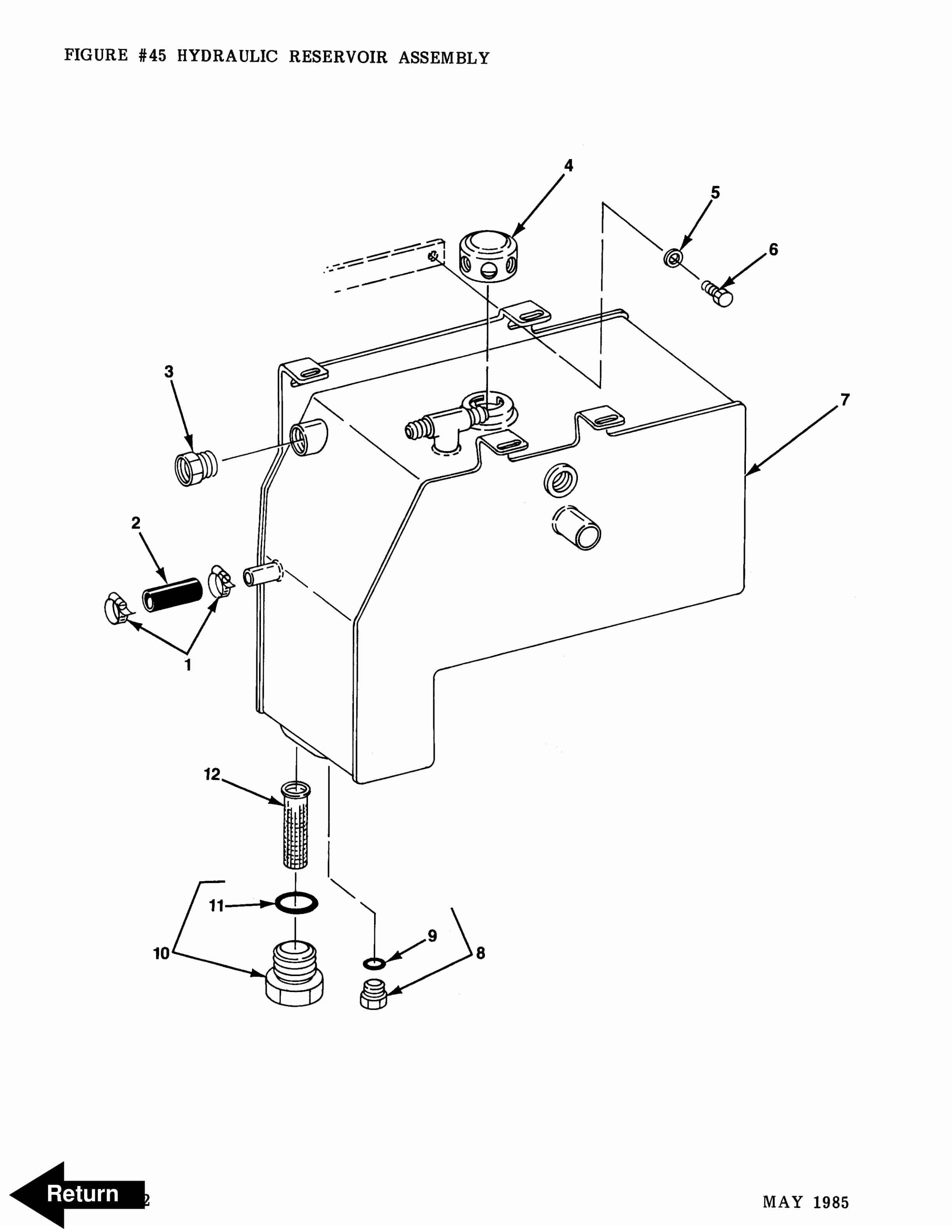
- 50. Figure 45 Hydraulic Reservoir Assembly
- 51. Figure 46 Lift Valve and Pump Assembly
- 52. Figure 47 Lift Pump and Motor Assembly
- 53. Figure 48 Lift Motor Assembly
- 54. Figure 49 24 Volt Lift Pump Assembly
- 55. Figure 50 36 Volt Lift Pump Assembly
- 56. Figure 51 Lift Control Valve Assembly
- 57. Figure 52 Steering Control Valve and Hose Assembly
- 58. Figure 53 Steering Control Valve Assembly
- 59. Figure 54 Steering Cylinder Assembly
- 60. Figure 55 2 Stage Cylinder and Reservoir Assembly
- 61. Figure 56 2 Stage Cylinder Assembly
- 62. Figure 57 3 Stage Cylinders and Reservoir Assembly
- 63. Figure 58 Freelift Cylinder Assembly
- 64. Figure 59 Staging Cylinder Assembly
- 65. Figure 60 2 Stage Mast Hydraulic Hose Assembly
- 66. Figure 61 3 Stage Mast Hydraulic Hose Assembly
- 67. Figure 62 Tilt Cylinder and Related Parts
- 68. Figure 63 Tilt Cylinder Assembly
- 69. Figure 64 Sideshifter Cylinder with Tilt Assembly
- 70. Figure 65 Sideshifter Cylinder Assembly
- 71. Figure 66 Sideshifter Manifold Valve Assembly
- 72. Figure 67 2 Stage Mast Installation Assembly
- 73. Figure 68 2 Stage Inner Column Assembly
- 74. Figure 69 2 Stage Outer Column Assembly
- 75. Figure 70 2 Cylinder Assembly and Related Parts
- 76. Figure 71 Lift Frame Assembly
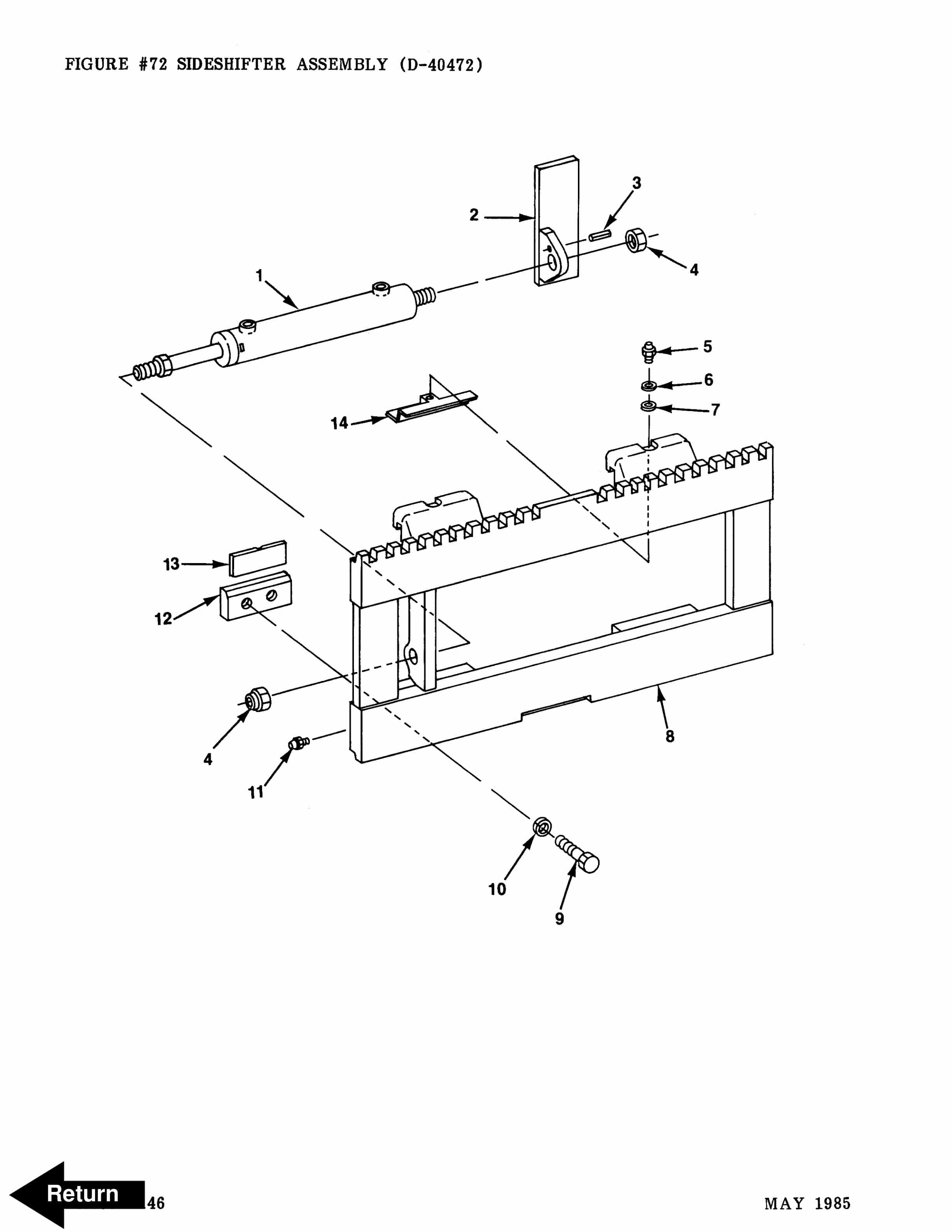
- 77. Figure 72 Sideshifter Assembly
- 78. Figure 73 Fork Assembly
- 79. Figure 74 3 Stage Mast Installation Assembly
- 80. Figure 75 3 Stage Outer Column Assembly
- 81. Figure 76 3 Stage Intermediate Column Assembly
- 82. Figure 77 3 Stage Inner Column Assembly
- 83. Figure 78 3 Stage Freelift Cylinder Assembly and Related Parts
- 84. Figure 76 Main Frame and Load Wheel Assembly
- 85. Figure 80 Single Load Wheel Assembly
- 86. Figure 81 Articulating Load Wheel Assembly
- 87. Numerical Index
- 88. Back Cover
Rate this product
You may also like















