BT LHT100 Service Manual 221117-040
$30.00
- Type Of Manual: Service Manual
- Manual ID: 221117-040
- : Service Manual PDF
- Number of Pages: 32
- Size: 0.7MB
- Format: PDF
Category: BT Service Manual PDF
-
Model List:
- LHT100
- 1. Return To HomePage
- 2. Table of contents
- 3. General Product Information
- 3.1. Presentation of the Truck
- 3.1.1. Intended use of the truck
- 3.1.2. Prohibited use of the truck
- 3.2. Truck Data
- 3.3. Electrical data
- 3.4. Truck dimensions
- 4. Maintenance
- 4.1. General
- 4.2. Safety rules for servicing work
- 4.2.1. Observe the following for servicing and maintenance
- 4.2.2. Necessary special tools
- 4.2.3. Information plates
- 4.3. Cleaning, washing and lubrication
- 4.3.1. Lubrication chart
- 4.3.1.1. Lubrication diagram
- 5. Tow bar
- 5.1. General
- 5.1.1. Replacing the tow bar
- 5.1.2. Replacing the lowering handle
- 5.1.3. Replace the press roller and valve rod.
- 5.1.4. Replacing buttons and safety switch against collision
- 5.1.5. Changing the brake switch and/or cam.
- 6. Hydraulics unit
- 6.1. General
- 6.1.1. Replacing the hydraulics
- 6.1.2. Replacing thrust bearings
- 6.1.3. Replacing the pump piston
- 6.1.4. Replacing the lift piston
- 6.1.5. Replacing the lowering valve
- 6.1.6. Replacing the cone
- 6.1.7. Changing the oil
- 6.1.8. Hydraulic diagram
- 7. Chassis
- 7.1. General
- 7.1.1. Replacing pivot pipes
- 7.1.2. Replacing the pressure rod
- 7.1.3. Replacing the wheel fork
- 7.1.4. Replacing the bogie fork
- 7.1.5. Replacing the fork wheel
- 8. Drive unit
- 8.1. General
- 8.1.1. Replacing the drive wheel
- 8.1.2. Changing the Oil
- 8.1.3. Replacing the brake
- 8.1.4. Replacing the drive unit
- 9. Troubleshooting, instructions
- 9.1. Troubleshooting
- 9.1.1. Troubleshooting chart
- 9.1.2. Troubleshooting LHT100 hydraulics
- 9.1.2.1. The hydraulics fall
- 9.1.2.2. Leakage in weld joint
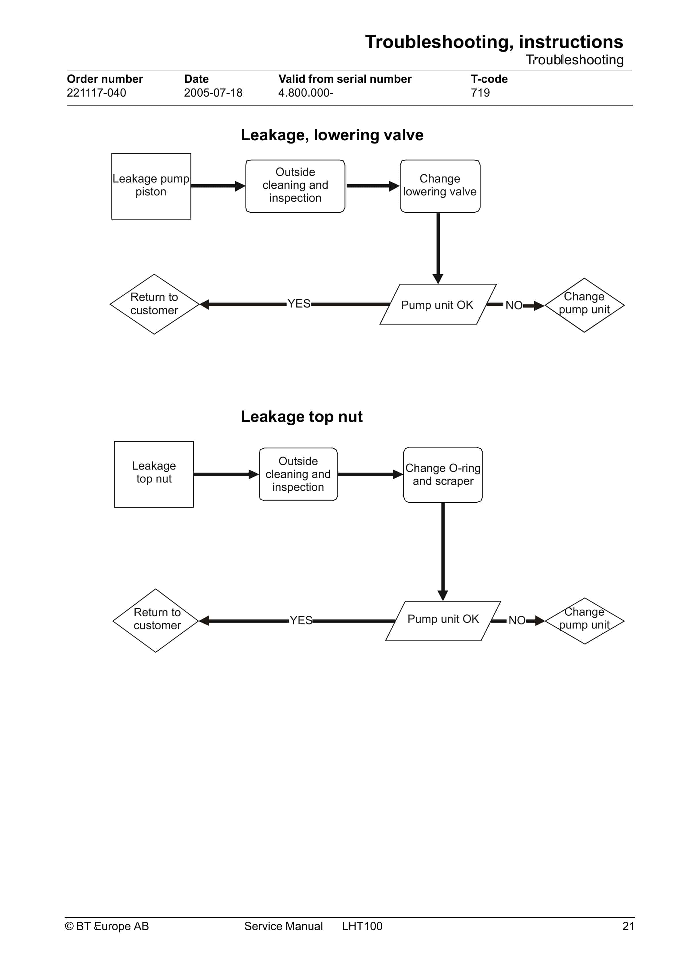
- 9.1.2.3. Leakage, lowering valve
- 9.1.2.4. Leakage top nut
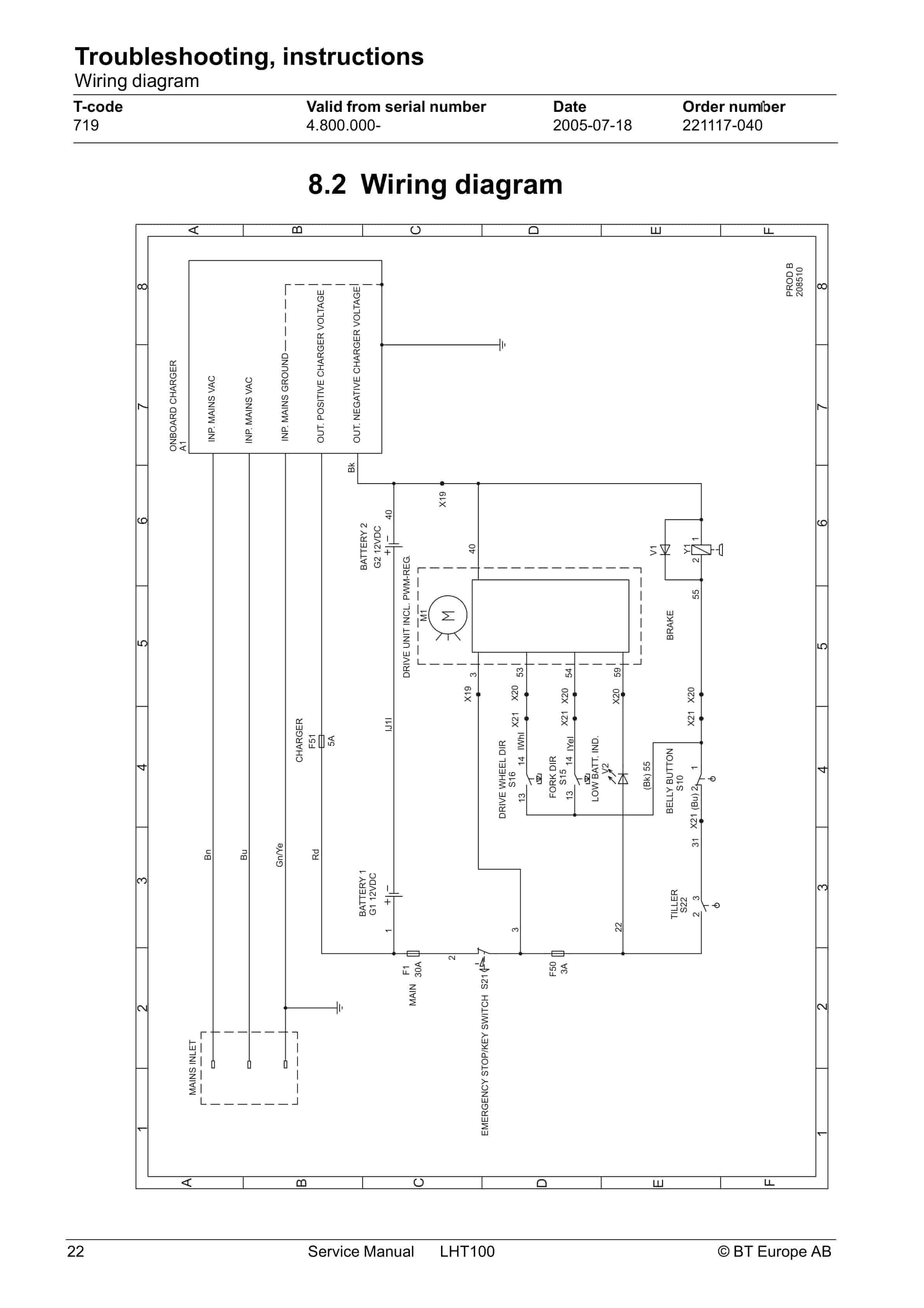
- 9.2. Wiring diagram
- 9.2.1. List of electrical components
- 9.3. Battery replacement
- 9.3.1. Charging instructions
- 10. Instructions for destruction
- 10.1. General
- 10.2. The Product
- 10.3. Methods
- 10.4. Grading of LHT100
- 10.4.1. Remove batteries
- 10.4.2. Empty out oils
- 10.4.3. Remove the electronics
- 10.4.4. Other
Rate this product
You may also like
BT Service Manual PDF
BT D-G-Series CBD15, CBD18, CBD20, CBG15, CBG18, CBG20 Use And Maintenance Handbook 0337290R1CE
$30.00
BT Service Manual PDF
$30.00
BT Service Manual PDF
BT CMX60, CMX80 Electric Center Riding Pallet Truck Service Manual 302825-000
$30.00
BT Service Manual PDF
BT D-Series CBD40, CBD45, CBD50 Use And Maintenance Handbook 0337308R1CE
$30.00








